- Floriane Lelièvre
- 24 mai 2024
- 1 min de lecture
Dernière mise à jour : 15 sept. 2025
g

Des cabines acoustiques “Mute Jetson” à partir de 95€HT/mois*
Profitiez de la rentrée pour offrir plus de confort à vos collaborateurs… sans transformer tous vos bureaux.
Il suffit parfois de 1 à 2 m² pour améliorer durablement le quotidien de vos équipes et optimiser vos espaces de travail.
Avec une cabine acoustique Mute Jetson, vous créez un espace pensé pour le calme et la concentration :
- Passer des appels ou visioconférences en toute confidentialité
- S’isoler pour travailler en toute sérénité
- Organiser une mini-réunion sans perturber les autres collaborateurs
Forma Design vous propose trois solutions :
- Cabine acoustique JETSON S1
- Cabine acoustique JETSON M1
- Cabine acoustique JETSON L2




MUTE DESIGN

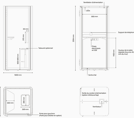
Le paradis acoustique en solo. Installez-vous et passez votre appel, participez à une visioconférence, ou plongez-vous dans une session de travail approfondie. Sentez-vous comme chez vous : fermez la porte, installez votre téléphone, et penchez-vous sur votre projet.
Jetson s’occupe du reste. Jetson est une famille de cabines acoustiques et universelles, conçues pour rendre le travail de chacun agréable et fructueux. Tout est pensé pour ses utilisateurs : confort et personnalisation grâce aux accessoires en option, pour satisfaire les besoins de chacun. Jetson est conçue à base d’aluminium extrudé, devenant ainsi la cabine la plus légère et la plus eco-friendly sur le marché. Grâce à sa structure solide et durable, son assemblage simplissime, son atténuation efficace de la parole, et son prix attractif, Jetson apporte le confort acoustique à tous les espaces de travail.








MUTE DESIGN


Un cocon de travail individuel, parfait pour se concentrer sur des tâches. Isolé du bruit, cet espace vous offre toute la tranquillité nécessaire pour mener à bien vos projets.
Jetson s’occupe du reste. Jetson est une famille de cabines acoustiques et universelles, conçues pour rendre le travail de chacun agréable et fructueux. Tout est pensé pour ses utilisateurs : confort et personnalisation grâce aux accessoires en option, pour satisfaire les besoins de chacun. Jetson est conçue à base d’aluminium extrudé, devenant ainsi la cabine la plus légère et la plus eco-friendly sur le marché. Grâce à sa structure solide et durable, son assemblage simplissime, son atténuation efficace de la parole, et son prix attractif, Jetson apporte le confort acoustique à tous les espaces de travail.










Un espace convivial et calme pour deux personnes. Un endroit idéal pour les conversations en tête-à-tête, loin des distractions du bureau. Ici, vous pouvez tous vous sentir chez vous : réglez les dossiers des sièges ou décorez les étagères avec des livres ou des affiches. La ventilation renouvelle l’air interne toutes les deux minutes, laissant vos esprits vifs et vos idées fraîches.
Jetson s’occupe du reste. Jetson est une famille de cabines acoustiques et universelles, conçues pour rendre le travail de chacun agréable et fructueux. Tout est pensé pour ses utilisateurs : confort et personnalisation grâce aux accessoires en option, pour satisfaire les besoins de chacun. Jetson est conçue à base d’aluminium extrudé, devenant ainsi la cabine la plus légère et la plus eco-friendly sur le marché. Grâce à sa structure solide et durable, son assemblage simplissime, son atténuation efficace de la parole, et son prix attractif, Jetson apporte le confort acoustique à tous les espaces de travail.






Le leasing, une solution simple et flexible.
Équipez vos bureaux sans immobiliser votre budget grâce au leasing : une cabine acoustique disponible sous deux à trois semaines, avec des mensualités adaptées. Vous combinez maîtrise financière et qualité d’aménagement, tout en offrant à vos équipes des espaces pensés pour le bien-être et la performance.
Mensualités fixes et adaptées
à partir de 95€ HT/mois* en fonction
des modèles de cabines
Flexibilité : Faites évoluer vos
équipements au rythme de
votre croissance
Confort immédiat pour vos
collaborateurs, sans attendre
*Offre de leasing à partir de 95€HT/mois pour une cabine Mute Jetson S1 “standard” frais de livraison et montage inclus France métropolitaine - Accès facilité requis (ascenseur adapté, pas de marche).






Commentaires